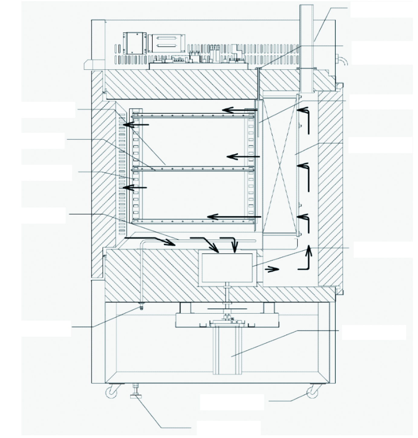
Description
Clean oven suitable for temperature test in dust-free environment.
Features of Clean Oven (DE611)
- Features
- V-type controller improves the display visibility and operability of the operation panel, with Power consumption / CO2 discharge monitor functioning as standard.
- Features
- Adoption of anti-fouling caster (preventing wheel contamination during transportation)
- Features
- Improvement of visibility of HEPA filter replacement timing by three color indication.
- Features
- Improvement of safety by phase-reversal relay, detecting of incorrect wiring of power supply when installing.
- Features
- Cable diameter changed from 30mm I.D to 33mm I.D when compare withconventional equipments.
- Features
- More options when compare with conventional equipment.









