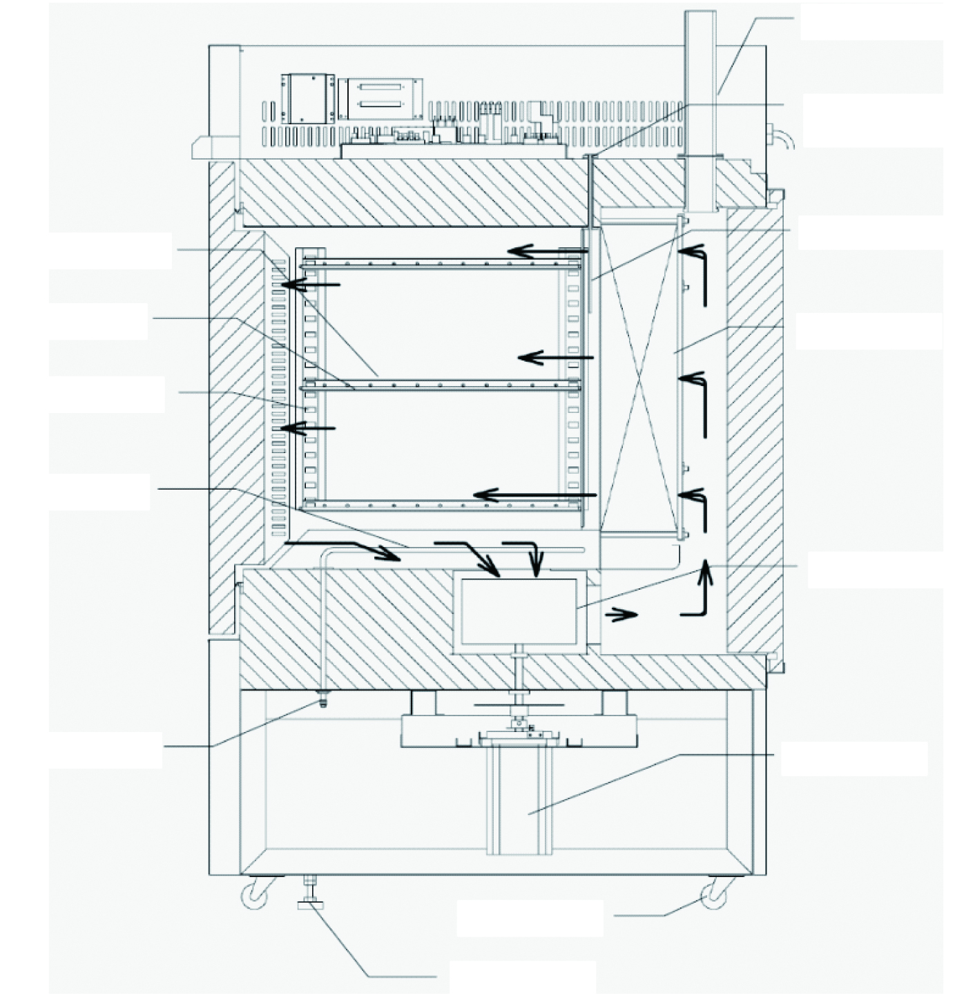
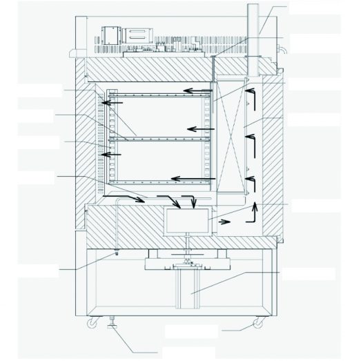
Description
Clean oven suitable for temperature test in dust-free environment.
Features of Clean Oven (DT411)
- Features
- Improvement of visibility of HEPA filter replacement timing by three color indication.
- Features
- Improvement of safety by phase-reversal relay, detecting of incorrect wiring of power supply when installing.
- Features
- Cable diameter changed from 30mm I.D to 33mm I.D when compare withconventional equipments.
- Features
- More options when compare with conventional equipment.









